La société 3C Carole Cléro Conception a été crée en 2011.

L’aventure artstique de Carole a commencé au plus jeune âge dans la réalisation de dessins, carnet de croquis avant d’intégrer l’école d’Architecture de Bretagne à Rennes. Diplômée du DEFA en 2005, elle a travaillé chez différents Architectes à Auray puis Carnac.

Au fil des années Carole s’est spécialisée en tant que Maître d’œuvre dans l’aménagement et la rénovation de maisons existantes, les extensions et aussi les maisons neuves, souvent celles qui ont des terrains particuliers.

Chacune de ses interventions sont pensées de manière unique en fonction du lieu, du terrain et du paysage environnant. Les projets sont adaptés aux budgets alloués aux opérations et surtout aux vœux des clients pour créer des espaces fonctionnels et adaptés.

Que ce soit le traitement d’une propriété à réhabiliter, de dessiner une petite salle de bain manquante sur un étage, d’aménager un comble inutilisé, ou de repenser les circulations intérieures pour créer une pièce supplémentaire, toutes les solutions sont permises.

Son langage est la lumière, les espaces fonctionnels, les circulations et la matière.

Esquisse pour un projet dans le Gers
Esquisse pour un projet dans le Gers

Après avoir travaillé plus de 20 ans en Bretagne et essentiellement à Saint Pierre-Quiberon, Quiberon, Carnac, Belz, Etel, la société 3C Carole Cléro Conception déménage à Paris.

L’idée est de mettre ses compétences en matière de plan au service de tous, sans oublier la Bretagne.

Carole Cléro répond sur la réalisation d’études de projets dans toute la France en fonction des demandes et des budgets alloués à l’opération.


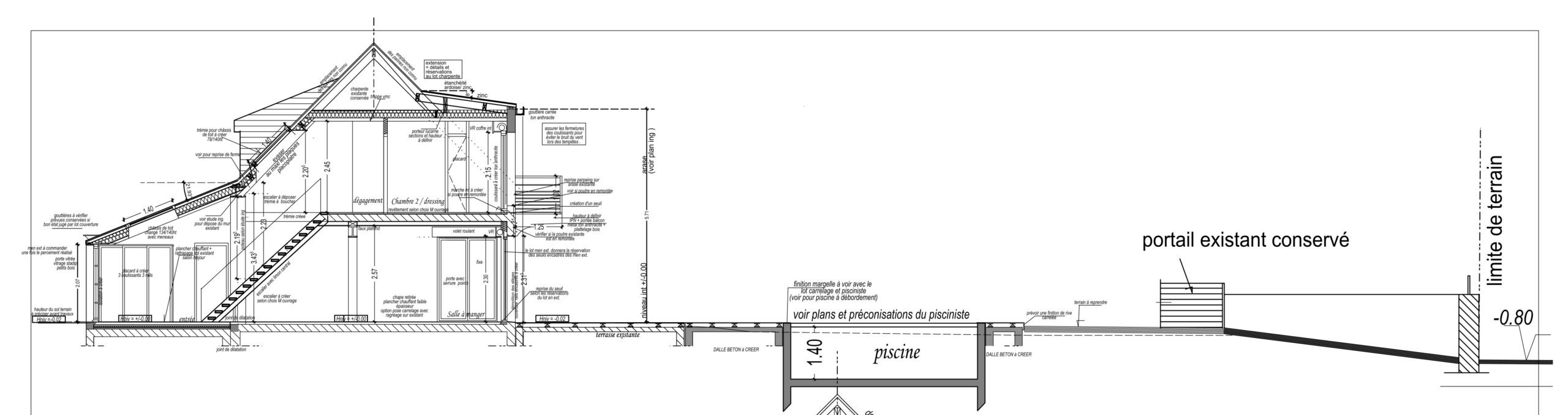
Projet de rénovation à Quiberon – Coupe sur terrain